Der Gemeindesaal
Gemütliche Atmosphäre für kleine Veranstaltungen
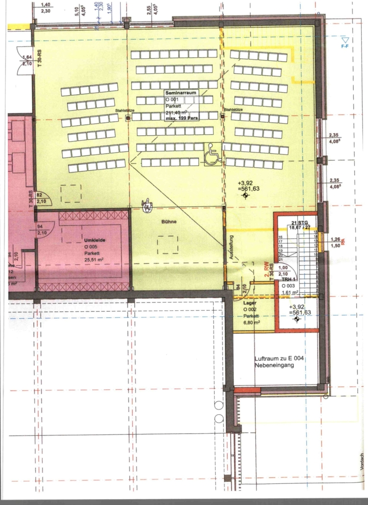
Für Veranstaltungen bis zu 100 Personen bietet sich der Gemeindesaal im ersten Stock an. Bequem über einen Aufzug erreichbar, ist auch hier barrierefreies Feiern und Kulturgenuss möglich. Die gemütliche Situation mit offenem Dachstuhl und viel Holz wird Sie und Ihre Gäste begeistern. Auch hier sorgt eine große Fensterfront über die ganze Raumseite für reichlich Lichteinfall und einen wunderbaren Ausblick.
Aufführungen oder auch eine Liveband finden auf der Bühne ihren schönen Rahmen. Für Ausschank oder ein Speisenbuffet bietet sich das Foyer an.





